РЕВИТАЛИЗАЦИЈА ВЕЛИКОГ БАЧКОГ КАНАЛА НА ПОТЕЗУ ВРБАС – КУЛА
Томислав Ђивуљскиј,грађ.инж.хидро.
Томислав Ђивуљскиј,грађ.инж.хидро.
ЈП "Дирекција за изградњу", Врбас
Резиме: Убрзаном индустријализацијом и небригом за пречишћавање индустријских и комуналних отпадних вода басена Врбас-Кула-Црвенка током друге половине XX века Велики бачки канал је постао најзагађенији водоток у Србији, па и у Европи. Деведесетих година прошлог века су започеле активности на сагледавању проблематике загађења и конципирању решења за пречишћавање отпадних вода индустрије и становништва, а што није реализовано због економских санкција и ратова на нашим просторима.
Дизањем капацитета у области заштите животне средине општине Врбас и Министарства заштите животне средине РС (Програм ЕЦБП 2003 – ЕАР) и ангажовањем водећих иностраних и домаћих института у области заштите вода конципирано је свеобухватно решење за ревитализацију Великог бачког канала. У раду је приказан развој решења које обухвата : Систем за прикупљање (канализациона мрежа у Врбасу и Кули), транспорт (Магистрални колектор Врбас-Кула) и пречишћавање отпадних вода (ЦППОВ капацитета 125 000 ЕС), Систем за прикупљање и транспорт отпадних вода насељених места општине Врбас и Чишћење и ревизтализацију Великог бачког канала у дужини од 6 км кроз насеље Врбас.
Кључне речи:Велики бачки канал, најзагађенији водоток, пречишћавање отпадних вода, магистрални колектор, ревитализација
УВОД
Изградњом Великог Бачког канала од Бездана на Дунаву до Бечеја на Тиси у дузини од 123 км ( 1802.год. ) првенствено је знатно скраћен водени пут којим се допремала со из Румуније, Тисом а затим Дунавом, на Бечки двор, а значајна је и његова улога у исушивању мочварних пространстава Бачке и њихово претварање у плодне оранице. У време изградње канала то је био највећи градитељски подухват у Аустро-угарској царевини: канал је копан ручно, а количина ископане земље је била равна ископу Суецког канала. Касније, у XX веку, Велики Бачки канал је постао окосница Хидросистема Дунав-Тиса-Дунав, једног од највећих хидросистема у Европи.
Убрзана индустријализација уз небригу за пречишћавање индустријских и комуналних отпадних вода басена Врбас-Кула-Црвенка током друге половине XX века претворила је Велики Бачки канал у колектор отпадних вода, те је данас најзагађенији водоток у Србији, па и у Европи.
Дизањем капацитета у области заштите животне средине општине Врбас и Министарства заштите животне средине РС (Програм ЕЦБП 2003 – ЕАР) и ангажовањем водећих иностраних и домаћих института у области заштите вода конципирано је свеобухватно решење за ревитализацију Великог бачког канала. У раду је приказан развој решења које обухвата : Систем за прикупљање (канализациона мрежа у Врбасу и Кули), транспорт (Магистрални колектор Врбас-Кула) и пречишћавање отпадних вода (ЦППОВ капацитета 125 000 ЕС), Систем за прикупљање и транспорт отпадних вода насељених места општине Врбас и Чишћење и ревизтализацију Великог бачког канала у дужини од 6 км кроз насеље Врбас.
Кључне речи:Велики бачки канал, најзагађенији водоток, пречишћавање отпадних вода, магистрални колектор, ревитализација
УВОД
Изградњом Великог Бачког канала од Бездана на Дунаву до Бечеја на Тиси у дузини од 123 км ( 1802.год. ) првенствено је знатно скраћен водени пут којим се допремала со из Румуније, Тисом а затим Дунавом, на Бечки двор, а значајна је и његова улога у исушивању мочварних пространстава Бачке и њихово претварање у плодне оранице. У време изградње канала то је био највећи градитељски подухват у Аустро-угарској царевини: канал је копан ручно, а количина ископане земље је била равна ископу Суецког канала. Касније, у XX веку, Велики Бачки канал је постао окосница Хидросистема Дунав-Тиса-Дунав, једног од највећих хидросистема у Европи.
Убрзана индустријализација уз небригу за пречишћавање индустријских и комуналних отпадних вода басена Врбас-Кула-Црвенка током друге половине XX века претворила је Велики Бачки канал у колектор отпадних вода, те је данас најзагађенији водоток у Србији, па и у Европи.
|
| Београд | Нови Сад | Врбас-Кула |
| Становништво | 1,600.000 | 300.000 | 94.500 |
| Испуштање органских материја БПК т/год. | 35.000 | 6.750 | 10.000 |
| Реципијент | Дунав | Дунав | Велики Бачки канал |
| Проток м3/с | 6.000 | 6.000 | 1 -5 |
Табела 1 – Поређење органског загађења Великог Бачког канала са локацијама на Дунаву
ПОЧЕТНЕ АКТИВНОСТИ НА РЕШАВАЊУ ПРОБЛЕМА
Деведесетих година прошлог века започеле су активности на сагледавању проблематике загађења Великог Бачког канала и конципирању решења за пречишћавања отпадних вода индустрије и становништва. ИГВ-Суботица је израдио 1986.год. Студију о отпадним водама региона Врбас-Кула-Црвенка којом су идентификовани загађивачи: Фабрика шећера "Црвенка", фабрика алкохола "Панон" и Фабрика бисквита "Јафа" у Црвенки, Фабрика штофова "Слобода", Фабрика кожа "Етерна" и Фабрика санитарних арматура "Истра" у Кули, Фабрика шећера "Бачка", Месна индустрија "Царнеx", Свињогојска фарма "Фармацооп" и "Витал" у Врбасу, као и комуналне отпадне воде насеља Црвенка, Кула и Врбас. Студијом је разматрано десет варијантних решења за пречишћавање отпадних вода и као економски и технички најрационалније одабрано је следеће: на Централном постројењу за прераду отпадних вода ( ЦППОВ ) се пречишћавају примарно третиране отпадне воде индустрија "Слобода", "Етерна", "Истра", "Царнеx" и "Витал" и становништва Куле и Врбаса. Отпадне воде двеју фабрика шећера, фабрике алкохола и свињогојске фарме третирају се, свака понаособ, засебно због огромног биолошког и хидрауличког оптерећења и сезонског карактера те би заједничко третирање било нерационално. ЦППОВ је лоциран на каналу Богојево-Бечеј узводно од "триангла" са Великим Бачким каналом. За овакво решење Грађевински факултет-Суботица је израдио Идејни пројекат ЦППОВ Врбас-Кула капацитета 300 000 ЕС.
ПОЧЕТНЕ АКТИВНОСТИ НА РЕШАВАЊУ ПРОБЛЕМА
Деведесетих година прошлог века започеле су активности на сагледавању проблематике загађења Великог Бачког канала и конципирању решења за пречишћавања отпадних вода индустрије и становништва. ИГВ-Суботица је израдио 1986.год. Студију о отпадним водама региона Врбас-Кула-Црвенка којом су идентификовани загађивачи: Фабрика шећера "Црвенка", фабрика алкохола "Панон" и Фабрика бисквита "Јафа" у Црвенки, Фабрика штофова "Слобода", Фабрика кожа "Етерна" и Фабрика санитарних арматура "Истра" у Кули, Фабрика шећера "Бачка", Месна индустрија "Царнеx", Свињогојска фарма "Фармацооп" и "Витал" у Врбасу, као и комуналне отпадне воде насеља Црвенка, Кула и Врбас. Студијом је разматрано десет варијантних решења за пречишћавање отпадних вода и као економски и технички најрационалније одабрано је следеће: на Централном постројењу за прераду отпадних вода ( ЦППОВ ) се пречишћавају примарно третиране отпадне воде индустрија "Слобода", "Етерна", "Истра", "Царнеx" и "Витал" и становништва Куле и Врбаса. Отпадне воде двеју фабрика шећера, фабрике алкохола и свињогојске фарме третирају се, свака понаособ, засебно због огромног биолошког и хидрауличког оптерећења и сезонског карактера те би заједничко третирање било нерационално. ЦППОВ је лоциран на каналу Богојево-Бечеј узводно од "триангла" са Великим Бачким каналом. За овакво решење Грађевински факултет-Суботица је израдио Идејни пројекат ЦППОВ Врбас-Кула капацитета 300 000 ЕС.

Схема 1 – Загађивачи Великог Бачког канала
Овим решењем отпадне воде се прикупљају и транспортују до ЦППОВ Магистралним колектором ЦППОВ-Врбас-Кула у душини од 12 км. Хидрозавод-ДТД из Новог Сада је 1991.год. израдио Главни пројекат Магистралног колектора. У периоду 1994.-1997.год. Општина Врбас је финансирала изградњу И и ИИ фазе Магистралног колектора од км 0+000 до км 3+650 пречника 1200 мм, за шта је утрошено око 2,0 милиона Еура.
Након тога је настао застој у реализацији овог пројекта услед економских санкција и ратова на нашим просторима.
НАСТАВАК АКТИВНОСТИ
Изградњом капацитета у области заштите животне средине Општине Врбас и Министарства заштите животне средине РС ( Програм ЕЦПБ 2003 – финансиран од стране ЕАР ) и ангажовањем водећих иностраних и домаћих института у области заштите и пречишћавања вода иновирано је пређашње и конципирано је свеобухватно решење Ревитализације Великог Бачког канала. У периоду 2004.-2005.год. током израде Локалног еколошког акционог плана ( ЛЕАП ) Општине Врбас као приоритетан циљ је одређена Ревитализација Великог Бачког канала и сви кораци и акције потребни за реализацију тог циља усаглашени су са активностима којим је руководио Норвешки институт за истраживање вода ( НИВА ) и Деконта ( Чешка Република ).
НИВА је током 2004.-2006.год. радила на испитивању улазних података загађења из индустрије и становништва на предметном подручју и преиспитивању пројектних решења из претходног периода. Потврђена је оправданост заједничког пречишћавања иднустријских и комуналних отпадних вода и локација ЦППОВ. На испитивању улазних података је ангажован и ПМФ-институт за хемију из Новог Сада, а на изради пројектно-техничке документације Грађевински факултет из Београда.
Као финале ангажмана НИВА-е израђена је следећа пројектна и техничка документација:
Генерални пројекат ЦППОВ Врбаса и Куле ( 4 варијантна решења )
Претходна студија оправданости ЦППОВ Врбаса и Куле
Генерални пројекат ЦППОВ Врбаса и Куле-опис усвојеног решења
Тендерска документација ЦППОВ Врбаса и Куле за изградњу по систему "кључ у руке"
Након тога је настао застој у реализацији овог пројекта услед економских санкција и ратова на нашим просторима.
НАСТАВАК АКТИВНОСТИ
Изградњом капацитета у области заштите животне средине Општине Врбас и Министарства заштите животне средине РС ( Програм ЕЦПБ 2003 – финансиран од стране ЕАР ) и ангажовањем водећих иностраних и домаћих института у области заштите и пречишћавања вода иновирано је пређашње и конципирано је свеобухватно решење Ревитализације Великог Бачког канала. У периоду 2004.-2005.год. током израде Локалног еколошког акционог плана ( ЛЕАП ) Општине Врбас као приоритетан циљ је одређена Ревитализација Великог Бачког канала и сви кораци и акције потребни за реализацију тог циља усаглашени су са активностима којим је руководио Норвешки институт за истраживање вода ( НИВА ) и Деконта ( Чешка Република ).
НИВА је током 2004.-2006.год. радила на испитивању улазних података загађења из индустрије и становништва на предметном подручју и преиспитивању пројектних решења из претходног периода. Потврђена је оправданост заједничког пречишћавања иднустријских и комуналних отпадних вода и локација ЦППОВ. На испитивању улазних података је ангажован и ПМФ-институт за хемију из Новог Сада, а на изради пројектно-техничке документације Грађевински факултет из Београда.
Као финале ангажмана НИВА-е израђена је следећа пројектна и техничка документација:
Генерални пројекат ЦППОВ Врбаса и Куле ( 4 варијантна решења )
Претходна студија оправданости ЦППОВ Врбаса и Куле
Генерални пројекат ЦППОВ Врбаса и Куле-опис усвојеног решења
Тендерска документација ЦППОВ Врбаса и Куле за изградњу по систему "кључ у руке"
| Параметар | Јединица | Максимална вредност |
| БПК 5 | мг/л | 25 |
| ХПК | мг/л | 125 |
| Суспендоване мат., СМ | мг/л | 30 |
| Масти и уља | мг/л | 0.1 |
| Укупан азот, Н тот | мг/л | 10 |
| Укупан фосфор, П тот | мг/л | 1 |
Табела 2 – Захтевани квалитет пречишћене воде на излазу из ЦППОВ Врбаса и Куле
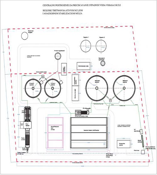
За ЦППОВ Врбаса и Куле усвојено је технолошко решење: Конвенцијално постројење – Постројење за пречишћавање отпадних вода биолошким процесом са активним муљем и анаеробном обрадом муља. Постројење је димензионисано на 125 000 ЕС и са предрачунском вредношћу од 13,5 милиона Еура.

Путем Развојне помоћи Чешке Републике ДЕКОНТА је у приоду 2004.-2006.год. радила на испитивању контаминираности муља на најугроженијој деоници Великог Бачког канала од преводнице "Врбас" до "триангла" у дужини од 6 км кроз само насеље Врбас. Испитивањима је утврђено да је на предметној деоници канала исталожено око 400 000 м3 муља контаминираног тешким металима ,полиароматичним угљоводоницима и термотолерантним колиформним бактеријама.
Вршена су теренска узорковања, лабораторијске анализе контаминираног муља, вршени су лабораторијски тестови третмана муља и, на крају, пилот тестови третмана муља.
Вршена су теренска узорковања, лабораторијске анализе контаминираног муља, вршени су лабораторијски тестови третмана муља и, на крају, пилот тестови третмана муља.

Као резултат обимних радова израђена је:
Студија оцене пилот тестова третмана седимената муља у великом Бачком каналу у Србији
Студијом је препоручено да се у зависности од карактера контаминације третман муља врши методама: Солидификације/стабилизације, Биоремедијације и Хигијенизације. Укупни трошкови третмана муља и ремедијације износе 15,0 милиона Еура, а време потребно за завршетак радова је 2 године.
Општина Врбас и ЈП "Дирекција за изградњу" Врбас је упоредо са напред наведеним активностима прибавила следећу пројектну и техничку документацију:
Извештај о извршеној стручној контроли Претходне студије оправданости и генералног пројекта ЦППОВ, Ревизиона комисија ПС АУГ
Геомеханички елаборат за ЦППОВ
План детаљне регулације ЦППОВ Врбаса и Куле у Врбасу
Студија о процени утицаја ЦППОВ Врбаса и Куле у Врбасу на животну средину
Одлука о санитарно-техничким условима за испуштање отпадних вода у јавну канализацију
Генерални пројекат система за евакуацију и пречишћавање отпадних вода насеља у Општини Врбас
ИЗГРАДЊА СИСТЕМА ЗА САКУПЉАЊЕ И ТРАНСПОРТ ОТПАДНИХ ВОДА
Током 2005.-2006.год. настављена је изградња Магистралног колектора – ИИИ фазе од км 3+650 до км 5+999 пречника 1200 мм са Црпном станицом "Врбас" и колектора отпадних вода "Виногради"- Магистрални колектор пречника 500 мм вредности 2,0 милиона Еура. Радови су финансирани донацијом Владе Краљевине Норвешке у износу од 1,25 милиона Еура ,а преосталих 0,75 милиона Еура из Буџета Општине Врбас.
Студија оцене пилот тестова третмана седимената муља у великом Бачком каналу у Србији
Студијом је препоручено да се у зависности од карактера контаминације третман муља врши методама: Солидификације/стабилизације, Биоремедијације и Хигијенизације. Укупни трошкови третмана муља и ремедијације износе 15,0 милиона Еура, а време потребно за завршетак радова је 2 године.
Општина Врбас и ЈП "Дирекција за изградњу" Врбас је упоредо са напред наведеним активностима прибавила следећу пројектну и техничку документацију:
Извештај о извршеној стручној контроли Претходне студије оправданости и генералног пројекта ЦППОВ, Ревизиона комисија ПС АУГ
Геомеханички елаборат за ЦППОВ
План детаљне регулације ЦППОВ Врбаса и Куле у Врбасу
Студија о процени утицаја ЦППОВ Врбаса и Куле у Врбасу на животну средину
Одлука о санитарно-техничким условима за испуштање отпадних вода у јавну канализацију
Генерални пројекат система за евакуацију и пречишћавање отпадних вода насеља у Општини Врбас
ИЗГРАДЊА СИСТЕМА ЗА САКУПЉАЊЕ И ТРАНСПОРТ ОТПАДНИХ ВОДА
Током 2005.-2006.год. настављена је изградња Магистралног колектора – ИИИ фазе од км 3+650 до км 5+999 пречника 1200 мм са Црпном станицом "Врбас" и колектора отпадних вода "Виногради"- Магистрални колектор пречника 500 мм вредности 2,0 милиона Еура. Радови су финансирани донацијом Владе Краљевине Норвешке у износу од 1,25 милиона Еура ,а преосталих 0,75 милиона Еура из Буџета Општине Врбас.

Секундарна канализациона мрежа у Врбасу је у потпуности довршена током 2006.-2007.год. Инвестициона вредност радова је била 2,0 милиона Еура а финансирана је средствима НИП-а у износу од 0,45 милиона Еура, Буџета Општине Врбас 1,1 милиона Еура и Месног самодоприноса И МЗ-Врбас у износу од 0,45 милиона Еура.
Током 2007.год. започела је изградња примарне и секундарне канализационе мреже у насељима Општине Врбас и "Јужног крака колектора" који доводи отпадне воде насеља Равно Село, Змајево и Бачко Добро Поље до ЦППОВ Врбаса и Куле. Изграђено је око 20 % пројектованих радова у вредности око 2,0 милиона Еура, финансирано од стране Општине Врбас.
ИЗРАДА СТУДИЈЕ ИЗВОДЉИВОСТИ ВРБАС
Општина Врбас, ЈП "Дирекција за изградњу" Врбас и ЈКП "Стандард" су током 2007.год. интензивно сарађивали ЕАР-ом кроз Програм подршке изградње инфраструктуре општина (МИАСП) на изради Студије изводљивости Врбас – Сакупљање и третман отпадних вода.
Обим Студије изводљивости: Сачинити основу за финансијску процену пројекта, коју ће извршити ЕАР; Направити план који се односи на институционални, организациони и финансијски оквир везан за систем третмана отпадних вода; Направити план изградње и функционисања новог постројења за третман отпадних вода и канализационог система, у складу са законодавством и регулаторним оквиром, као и законима у области заштите животне средине на нивоу Србије и Европске уније.
Закључци и препоруке Студије изводљивости: Селима у Општини Врбас обезбедити канализациони систем и обезбедити одвођење прикупљених вода на ЦППОВ,где би све прикупљене воде индустрије и становништва пречишћене пре испуштања у канал; ЦППОВ градити у три фазе ( И фаза – капацитет 100 000 ЕС прихвата воде из градске зоне Врбаса, сеоске зоне и индустрије; ИИ фаза – капацитет 50 000 ЕС прихвата воде настале у Кули,како становништва тако и индустрије и ИИИ фаза која подразумева надградњу технолошког процеса путем уклањања азота и фосфора у складу са водопривредним условима; Потребно је формират ново ЈКП у циљу управљања системом за прикупљање и третман отпадних вода. ( Фазност изградње ЦППОВ је предложена због изразитог заостајања изградње канализационе мреже у Кули ).
За реализацију И фазе процењено је да је потребно 25,0 милиона Еура, од чега би се путем донација из ЕУ-ИПА фондова обезбедило 18,5 милиона Еура, а остатак од 6,5 милиона Еура из домаћих извора ( НИП, ФКУ АПВ, Буџет Општине Врбас ).
САРАДЊА СА ПРОГРАМОМ УЈЕДИЊЕНИХ НАЦИЈА ЗА РАЗВОЈ – УНДП
Општина Врбас се 2007.год. "квалификовала" проблемом Великог Бачког канала за Регионални програм "Јачање капацитета за превазилажење проблема у животној средини у земљама Западног Балкана путем санирања приоритетних еколошких црних тачака". Током реализације овог програма уз меке компоненте ће бити довршена изградња Магистралног колектора у дужини од 6 км са изградњом Црпне станице "Кула". Довршетком Магистралног колектора стварају се услови да се прихвате све отпадне воде индустрије и становништва које ће се третирати на ЦППОВ. Овај пројекат се финансира путем донације Владе Холандије у износу од 2,1 милион $ и средствима Еколошког фонда РС у износу од 2,0 милиона $.
ЗАВРШНИ КОРАЦИ
Фокусирајући се на решавању три највећа еколошка проблема у Србији – Бор, Панчево и Велики Бачки канал крајем 2007.год. Министарство заштите животне средине формирало је Радну групу за Коначно решавање проблема загађења и чишћења Великог Бачког канала. Радну групу чине представници Министарства ЗЖС РС, Еколошког фонда РС,Општина Врбас и Кула, Фонда за капитална улагања АПВ и ЈВП "Воде Војводине". За консултанта је одређен Институт за водопривреду "Јарослав Черни" из Београда.
Задатак Радне групе је да обезбеди финансирање и усклади све активности на Коначном решавању проблема загађења и чишћења Великог Бачког канала:
Завршетак Система за прикупљање и транспорт отпадних вода и прикључење на ЦППОВ
Реконструкција и/или изградња нових уређаја за третман отпадних вода индустрије које се прикључују на ЦППОВ
Изградња и пуштање у рад ЦППОВ
Измуљење деонице канала у дужини од 6 км кроз Врбас ( укључујући потребан третман ).
Радна група је израдила Акциони план којим се све активности имају завршити до децембра 2010. године .
Литература
www.врбас-нива.нет
Генерални пројекат ЦППОВ Врбаса и Куле, Грађевински факултет ( ГФ ) Београд, април 2005.г.
Претходна студија оправданости ЦППОВ Врбаса и Куле, ГФ Београд, мај 2005.г.
Генерални пројекат ЦППОВ Врбаса и Куле – опис усвојеног решења, ГФ Београд, јун 2006.г.
Тендерска документација за ЦППОВ Врбаса и Куле за изградњу по систему "кључ у руке", ГФ Београд, јун 2006.г.
План детаљне регулације ЦППОВ Врбаса и Куле у Врбасу, ЈП "Дирекција за изградњу" Врбас, јун 2007.год.
Студија о процени утицаја ЦППОВ Врбаса и Куле на животну средину, Факултет техничких наука, Нови Сад, април 2007.г.
Извештај о извршеној стручној контроли Генералног пројекта ЦППОВ Врбаса и Куле, Ревизиона комисија ПС за архитектуру, урбанизам и градитељство, Нови Сад, јун 2006.г.
Локални еколошки акциони план Општине Врбас,ЛЕАП, 2005.г.
Национални еколошки акциони план РС, НЕАП, Предлог, 2006.г.
Генерални пројекат система за евакуацију и пречишћавање отпадних вода насеља у Општини Врбас, Аква-Пројект, Суботица, април 2007.г.
Студија оцене пилот тестова третмана седимената муља у Великом Бачком каналу у Србији, Деконта (Чешка Република ), октобар 2006.г.
Студија изводљивости Врбас – Сакупљање и третман отпадних вода, Европска агенција за реконструкцију (ЕАР), Београд, новембар 2007.г.
www.misp-serbia.rs
www.undp.org.yu/montenegro/rep/index.html


